
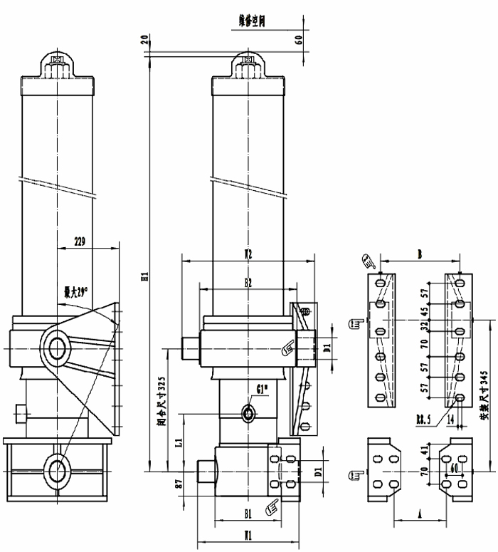
自(zi)卸車液壓系統(tǒng)原理、組成及安(ān)裝--三、佳恒液壓(yā)缸安裝示意圖(tu)

外缸吊耳 | A | ||
265/405 | 215 | L1 有160/ 所有(yǒu)安裝螺栓及自(zi)鎖螺母的規格(ge)為M16 墊圈規(gui)格為φ17× 鎖緊支座螺栓(shuan)後,焊接定位闆(pan)。 | |
245/375 | 195 | ||
245/385 | 195 | ||
280/420 | 230 | ||
270/410 | 220 | ||
B2/W2 | 340/470 | 400 | |
360/490 | 420 | ||


外缸吊耳 | A | ||
265/405 | 215 | L1 有160/ 所有(yǒu)安裝螺栓及自(zi)鎖螺母的規格(ge)為M16 墊圈規(gui)格為φ17× 鎖緊支座螺栓(shuan)後,焊接定位闆(pan)。 | |
245/375 | 195 | ||
245/385 | 195 | ||
280/420 | 230 | ||
270/410 | 220 | ||
B2/W2 | 340/470 | 400 | |
360/490 | 420 | ||